学生寮

学生寮

令和8年度学生寮第Ⅱ期選考結果について(新入生)

学生寮第Ⅱ期選考結果を公開しました。

学生寮入寮許可者一覧・第Ⅱ期選考(PDF)

■入寮を許可された方は必ず手続きに関する資料・第Ⅱ期選考(PDF)を確認し、必要な手続きを行ってください。

※入寮の手続き(居室の鍵・入寮に関する書類のお渡し等)は平日のみ対応いたします。(土日は対応できません。)



令和8年度学生寮第Ⅰ期選考結果について(新入生)

学生寮第Ⅰ期選考結果を公開しました。

学生寮入寮許可者一覧(PDF)

■入寮を許可された方は必ず手続きに関する資料(PDF)を確認し、必要な手続きを行ってください。

※入寮の手続き(居室の鍵・入寮に関する書類のお渡し等)は平日のみ対応いたします。(土日は対応できません。)



【参考】リユース家具・家電について
本学では、株式会社AXIA様とリユース活動を通してSDGsの推進に取り組んでおります。
株式会社AXIA様は、リユースショップを運営しており、リユース商品の購入が可能です。
詳しくは、チラシ(PDFファイル)リユースショップ オトワリバースウェブサイトをご覧ください。

学生寮入寮の募集について ※募集は終了しました。

【令和8年度 新入生向け(学部生のみ)】

第2寮、陽東寮、雷鳴寮、セキスイハイムさくら寮について募集します。

申請方法は、募集要項をご覧ください。(PDFが開きます)


※閲覧の際はページを[最新の情報に更新]してご覧ください。


【在学生向け(学部生のみ)】

在学生向けの募集については教務ポータルをご覧ください。

[フォーラム→学生生活に関するお知らせ]

学生寮について

本学には、「第1寮」、「第2寮」、「陽東寮」、「雷鳴寮」、「セキスイハイムさくら寮」の5つの学生寮があります。入寮の時期は、原則として4月です。欠員が生じた場合は随時募集をします。

入寮については、毎年入寮希望者が多いことから次の要件を基に選考で入寮者を決定します。

セキスイハイムさくら寮については、抽選により入寮者を決定します。

  • 自宅が遠方であり、通学が困難であること。
  • 家庭の経済的困窮度が高いこと。(第1寮、第2寮、陽東寮、雷鳴寮)
  • その他特別な事情(家庭状況等)によります。
※寮は共同生活の場であり、各寮の清掃や会合などには、積極的に参加・協力することが必要です。

学生寮の概要

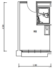
第1寮
※新規入寮受付停止中
施設の概要 種別 男子寮
定員 36名(うち6名は留学生の定員)
構造 鉄筋3階建
建築年月 昭和63年3月
居室規模 個室(洋室) 13.5平米(長方形約8畳)
居室設備 机、椅子、ベッド、TVアンテナ共聴端子、LAN端子、書棚
食堂 無 自炊となります。各階に補食室があり炊事ができます。設備はキッチン、
ガス給湯器、電子レンジ、冷蔵庫等があります。
風呂 有 共同
トイレ 有 共同
その他の設備 そのほか各階に共用の洗濯機及び乾燥機が設置してあります。

〒321-0912 宇都宮市石井町2980番地

  • 第1寮室内図面
  • 第1寮外観
  • 第1寮内装
寄宿料
(月額)
入居一時金
(入居時1回)
駐車料金
(月額)
共益費
(月額)
7,000円 31,900円 1,100円
(空きがあり契約した方のみ)
1,000円
※上記の他、電気料金、水道料金、ガス料金(補食室、トイレ、浴室、洗濯室等の共用部含む)については、実費を大学から請求いたします。
※支払い方法については、口座からの自動引落となります。(必要な手数料については、学生または学資負担者にご負担いただきます。)



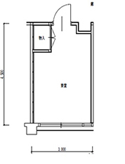
第2寮
施設の概要 種別 女子寮
定員 44名(うち4名は留学生の定員)【タイプA:39室、タイプB:5室】
構造 鉄筋3階建
建築年月 平成2年3月
居室規模 個室(洋室) 13.5平米(長方形約8畳)
居室設備 タイプA:机、椅子、ベッド、TVアンテナ共聴端子、書棚、LAN端子(VDSL方式)
タイプB:机、椅子、ベッド、TVアンテナ共聴端子、書棚、エアコン、ハンガーラック
食堂 無 自炊となります。各階に補食室があり炊事ができます。設備はキッチン、
ガス給湯器、電子レンジ、冷蔵庫等があります。(令和3年度に改修しました。)
風呂 有 共同(令和3年度に改修しました。)
トイレ 有 共同
洗面所 有 共同
各階に4台(冷水のみ)設置されています。
その他の設備 玄関はオートロックになっています。
そのほか各階に共用の洗濯機及び乾燥機が設置してあります。

〒321-0912 宇都宮市石井町2980番地

  • 第2寮間取り
  • 第2寮外観
  • 第2寮ロビー
  • 第2寮キッチン
  • 第2寮シャワー
※浴室は、シャワー室×4室、湯船のあるユニットバス×1室があります。
  • 第2寮タイプAタイプA
  • 第2寮タイプBタイプB(※カーテンはついていません)

寄宿料
(月額)
入居一時金
(入居時1回)
駐車料金
(月額)
共益費
(月額)
タイプA:9,000円
タイプB:11,000円
31,900円 1,100円
(空きがあり契約した方のみ)
1,000円
※上記の他、電気料金、水道料金、ガス料金(補食室、トイレ、浴室、洗濯室等の共用部含む)については、実費を大学から請求いたします。
※支払い方法については、口座からの自動引落となります。(必要な手数料については、学生または学資負担者にご負担いただきます。)



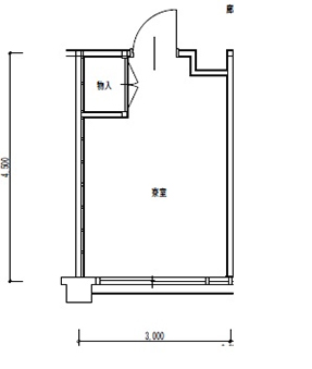
雷鳴寮
施設の概要 種別 男子寮
定員 36名
構造 鉄筋3階建
建築年月 平成20年3月
居室規模 個室(洋室) 13.5平米(長方形約8畳)
※上記の面積にIH式ミニキッチン及びユニットバスを含む(約3畳)
居室設備 机、椅子、IH式ミニキッチン、ガス給湯ユニットバス(風呂のみ)、TVアンテナ共聴端子、LAN端子(LAN方式)
食堂 無 自炊となります
風呂 有 各居室のユニットバス
トイレ 有 共同
その他の設備 そのほか共用の洗濯機及び乾燥機が設置してあります。

〒321-0904 宇都宮市陽東7-1-2

  • 雷鳴寮間取り
  • 雷鳴寮入口
  • 雷鳴寮内装
  • 雷鳴寮キッチン
  • 雷鳴寮シャワー
寄宿料
(月額)
入居一時金
(入居時1回)
駐車料金
(月額)
共益費
(月額)
17,000円 31,900円 駐車場はありません 1,000円
※上記の他、電気料金、水道料金(トイレ、洗濯室等の共用部含む)については、実費を大学から請求いたします。
※支払い方法については、口座からの自動引落となります。(必要な手数料については、学生または学資負担者にご負担いただきます。)
※ガスは個別契約となりますので、各自でご契約・お支払いいただきます。



陽東寮
施設の概要 種別 男子寮
定員 80名
構造 鉄筋3階建
建築年月 平成19年5月
居室規模 個室(洋室) 13.5平米(長方形約8畳)
※上記の面積にIH式ミニキッチン及びユニットバスを含む(約3畳)
居室設備 机、椅子、IH式ミニキッチン、ガス給湯ユニットバス、TVアンテナ共聴端子、LAN端子(LAN方式)
食堂 無 自炊となります
風呂 有 各居室のユニットバス
トイレ 有 各居室のユニットバス
その他の設備 そのほか各階に共用の洗濯機及び乾燥機が設置してあります。

〒321-0904 宇都宮市陽東7-1-2

  • 陽東寮間取り
  • 陽東寮入口
  • 陽東寮内装
  • 陽東寮キッチン
  • 陽東寮浴室
寄宿料
(月額)
入居一時金
(入居時1回)
駐車料金
(月額)
共益費
(月額)
17,000円 31,900円 駐車場はありません 1,000円
※上記の他、電気料金、水道料金(トイレ、洗濯室等の共用部含む)については、実費を大学から請求いたします。
※支払い方法については、口座からの自動引落となります。(必要な手数料については、学生または学資負担者にご負担いただきます。)
※ガスは個別契約となりますので、各自でご契約・お支払いいただきます。



セキスイハイムさくら寮

セキスイハイムさくら寮について

施設の概要 種別 女子寮
定員 103名(うち1名バリアフリー対応)
構造 鉄筋4階建
建築年月 令和4年2月
居室規模 個室(洋室) 18平米
※上記の面積にIH式ニミニキッチン及びユニットバスを含む
居室設備 机、椅子、ベッド(マットレス付き)、姿見付クローゼット、エアコン、冷蔵庫、家電ラック(オーブンレンジ、炊飯器、電気ケトル)、カーテン、IH式ミニキッチン、洗面化粧台、ガス給湯ユニットバス、TVアンテナ共聴端子、LAN端子(無料Wi-Fi)
食堂 無 自炊となります
風呂 有 各居室の浴室換気乾燥機付きユニットバス
トイレ 有 各居室の温水洗浄暖房便座付トイレ
その他の設備 玄関はオートロックになっています。
そのほか各階に共用の洗濯機及び乾燥機が設置してあります。

〒321-0904 宇都宮市陽東7-1-2

寄宿料
(月額)
入居一時金
(入居時1回)
駐車料金
(月額)
共益費
(月額)
49,000円
(水道料金、Wi-Fi使用料含む)
50,000円 駐車場はありません なし
※上記費用の支払い方法については、口座からの自動引落となります。(必要な手数料については、学生または学資負担者にご負担いただきます。)
※電気・ガスは個別契約となりますので、各自でご契約・お支払いいただきます。

Q&A

新入生の募集定員は何名ですか?

4月入学の新入生の募集定員は各寮の定員の約1/4と考えてください。

大学院生は入寮できますか?

学部生のみが対象となります。(外国人留学生を除く)

学生寮には何年間入寮できますか?

在寮期間限定の募集を除き、原則は4年生まで入居可能で、在寮期間は最短修業年数を超えることはできません。

学生寮とアパートの併願はできますか?

アパート紹介を大学生協で行っておりますが、こちらでは学生寮とアパートの申込の併願はできません。
その他の併願の可否につきましては、不動産会社に直接確認してください。

入学後に入寮をすることは可能ですか?

年度途中に空室がでましたら募集を行います。なお、募集告知は学生用掲示板でお知らせします。

学生寮から大学までの距離はどのくらいですか?

第1寮、第2寮は峰キャンパスまで約1.5 km、陽東キャンパスまで約1.5kmあります。雷鳴寮、陽東寮、セキスイハイムさくら寮は陽東キャンパス内にあり、峰キャンパスまで約2kmあります。

門限はありますか?また、寮母さんはいますか?

門限は特に設けられていません。また、24時間体制の寮母さんはいませんが、第1寮及び第2寮で1名(平日の8時30分から15時30分)、雷鳴寮及び陽東寮で1名(平日の8時30分から15時30分)、セキスイハイムさくら寮で1名(平日の9時から16時)の管理人が勤務しています。管理人は主に学生寮の環境整備を行っていますが、寮生活に関する相談や設備の故障等についてご相談いただけます。

家族や友人を泊めることはできますか?

寮生以外の者の宿泊は認められていません。

食事の提供はありますか?

学生寮では食事の提供はしていませんので、自炊となります。
第1寮、第2寮については各階にある補食室で、雷鳴寮、陽東寮、セキスイハイムさくら寮については各居室のIHクッキングヒーターを利用して調理ができます。

学生寮内で喫煙できますか?

学生寮は禁煙です。
学生寮の建物内を含め、敷地内は大学キャンパスと同様に全面禁煙です。電子タバコ・加熱式タバコも使用できません。

インターネットは使用可能ですか?

居室にはLAN端子があり(第2寮タイプBを除く)、各自で回線事業者等と契約していただくことにより使用可能です(使用料は本人負担となります)。
※LAN配線工事が必要な場合、費用は入居者負担となる可能性があります。
※セキスイハイムさくら寮については、寄宿料にインターネット使用料が含まれております。

テレビ(NHKの受信料)は個人での契約ですか?

テレビを視聴する際は各自でNHKに契約することとなります。また、受信料は本人負担となります。

家具や家電のレンタルはありますか?

レンタルはありませんが、本学では、株式会社AXIA様とリユース活動を通してSDGsの推進に取り組んでおります。
株式会社AXIA様は、リユースショップを運営しており、リユース商品の購入が可能です。詳しくは リユースショップ オトワリバースウェブサイトをご覧ください。

学生寮の中を見学することは可能ですか?

学生支援課職員又は管理人立会いの下、見学が可能です。(平日のみ。概ね9時から15時まで。)
学生寮の見学を希望する場合は、日程等を調整させて頂きますので、下記問い合わせ先にご連絡ください。なお、居室内の見学は空室がある場合のみとし、満室の場合はお断りさせて頂きますので予めご了承ください。



規程

宇都宮大学学生寮規程
宇都宮大学学生寮入寮選考基準
宇都宮大学学生寮入寮選考実施要領
宇都宮大学学生寮等の退去後の原状回復に必要な費用に関する取扱要領

お問い合わせ先
学務部学生支援課課外活動係 E-mail kagai-g*a.utsunomiya-u.ac.jp
(*を半角@に変更してください)